Net-zero bellwether demonstrates extreme green, multifamily style
Multifamily developers are bullish on the sector, with FMI’s Construction Outlook Report predicting 25% growth next year on top of this year’s blistering 36% pace. From a sustainability standpoint, much of the most interesting work is clustered at the ends of the bell curve, in both the luxury and affordable categories.
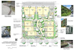
A singular high-end example is the zHome project, a 10-unit attached townhouse development in Issaquah Highlands, Wash. Designed by David Vandervort Architects, zHome is the nation’s first net-zero multifamily project, as certified this year by the International Living Future Institute. The property also achieved Living Building Challenge Petal Recognition in the Energy, Equity, and Beauty categories, and has earned the WaterSense for New Homes label (another first for the sector).
Though not “luxury” per se, the contemporary one-, two-, and three-bedroom units launched at relatively high prices for the market, topping out at $625,000. Nevertheless the homes, which range from 800 to 1,750 sf, have all been sold, except one unit reserved as a Stewardship Center for educational outreach.
The zHome dream survived a rocky history, including the 2008 economic crash and a succession of three contractors. Ultimately built by Howland Homes and Ichijo USA in collaboration with the City of Issaquah, the project includes super-insulated envelope technology, ground-source heating, and generous deployment of PV, which covers large, south-facing roof planes.
Water strategies should cut average usage by at least 60% through a combination of drought-tolerant landscaping, high-efficiency plumbing and laundry equipment, and use of cistern-stored rainwater for toilet flushing and clothes washing.
Brad Liljequist—zHome’s project manager, now a Technical Director for the International Living Future Institute—spread the net-zero gospel in a series of blogs for Dwell magazine. He lists micro heat pumps, better industrial design (for instance, more beautiful wall-mounted heating/cooling units), safer building materials, and deep green retrofits as priorities for further progress in the sector.
“We are undergoing a revolution in building performance, driven mainly from a grassroots, local, and regional community,” he said. “We can change, fundamentally and quickly.”






