Meet the ‘CoHaus’: N.Y. developer unveils large-scale flats concept for boomers, Gen Xers
Dobbs Ferry, N.Y.-based multifamily, retail, and hotel developer Ward Capital Management unveiled a hybrid multifamily/single-family project near downtown New Rochelle, N.Y.
Aimed at baby boomers who are looking to downsize and Gen Xers looking to upsize, the new Maple Avenue Residences complex combines single-family living with a maintenance-free condominium lifestyle.
The concept, called Condominium Haus (or “CoHaus”), involves building six large-scale, for-sale, single-family flat residences across three buildings. Architect William Alicea designed the complex.
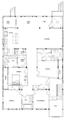
Residences range in size from 2,307 to 3,000 sf of living space and include: individual balconies, private garages, and storage rooms. Select units feature a private driveway and a rear yard that is maintained by the condo association.
Two configurations: four-bedroom, three-bath units; and three-bedroom, three-bath units with an office and separate entrance. All units feature nine-foot ceilings, a greenhouse off the kitchen, butler pantry, private study, and laundry room.
The units range in price from $990,000 to $1.2 million.





