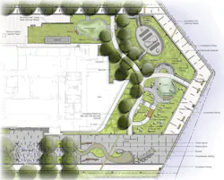
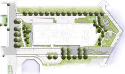
Healing garden doubles as therapy trails
Copley Wolff Design Group, a landscape architecture and planning firm based in Boston, completed therapy trails for the Spaulding Rehabilitation Hospital in Charlestown Navy Yard. The design of the trails encourages rehabilitation and lets patients practice real-life physical challenges—such as walking on a sloped surface—within a safe, controlled environment.
The trails incorporate staggered stainless steel handrails, increased walk slopes, distance markers, interactive spinning rock elements for upper-body conditioning, varied walking surfaces, and granite stairs.
The therapy trails turn the patient’s recuperation toward the outdoors, bringing them closer to their return to their daily lives. The trails link to Boston’s Harborwalk, a 47-mile pathway lining the harbor.
Also on the Building Team for owner Partners Healthcare: Perkins+Will (architect), Thompson Consultants (MEP), vhb (CE), AKF Group (lighting designer), Haley & Aldrich (geotechnical engineer), and Walsh Brothers (CM).





