Inside an Architect’s Office
Work environments are important – they tell visitors a lot about what to expect from the place they are visiting. I almost always enjoy visiting other architects office because it seems like there is always something wacky going on somewhere. I’m not talking about the office’s of large architectural firms – no. I like going into the offices of firms with 30 people or less…15 or less is even better. It’s at the point where the budget is still the major obstacle and the possibility of seeing saw-horse desks and reclaimed bookshelves is a distinct and sometimes necessary component.
The Best thing About my New Office [8:00 mark]
A recurring theme on my site is transparency – I will tell almost anybody anything when it comes to all things “Bob”. I’m substantially more guarded when it comes to other people’s information but there is a synergy that is created when everybody has a voice and gets to chime in with a thought or observation about a process or design. In our office, the people here collaborate at a level that I have never seen before in 20+ years of working. I have been wondering if this is just the mixture of people in place or is there something in the water. When everything is open for discussion and opportunities for involvement are as close as the person sitting next to you, people tend to get together and synergies are created. For that reason, 5-years ago when I designed our current office, we concluded that it would be a good idea to utilize an open office plan and I was going to sit in the thick of things …
Fast forward 5 years, and I don’t want to sit in the thick of things anymore.
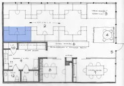
An Architect’s Office [8:45mark]
This was the layout of the first office I helped design – which actually worked out really well for the size staff that we had at the time. I will confess that I’m a bit nostalgic looking back simply because I miss my sweet private office more than ever.
Harvard Study on Open Plans [16:32 mark]
Open office plans don’t work and this was the study that finally proved it. Instead of face-to-face interactions improving in an open office space, they went down … by a lot.
Tools of an Architect [33:55 mark]
I get asked about it all the time so I am going to record the answer here … the desk we used in our office is the Knoll Antenna benching system (here) [36:25 mark]. It’s been a great system for use and after heavy use for 5+ years, I think they still look brand new … which is impressive.
A Case for Building Architectural Models [38:30 mark]
We still build architectural models in my office, but not that many – and far fewer than I would like to see built. We probably average about 1 or 2 a year, but we don’t build them for the same reasons I used to crank out models in my school days. As we become more and more dependent on our computers, physical architectural models are becoming a lost form of communicating design ideas. In school, I would go through loads of chipboard and more #11 X-Acto blades than seems reasonable, to create massing and assembly models. While most of the models we build now are still in the Design Development stage, they represent a fairly resolved concept by the time we build them.
This is the ‘Voltron Table’ and as the name suggests it is large, comes apart into smaller pieces, and can house smaller models in addition to a single super large model. If you aren’t familiar with the Voltron model, you can see it here (Architectural Models)
In My Spare Time – Landon [47:11 mark]
[enter Landon, blog stage left]
Hearth and Hand Black Flatware Set
In My Spare Time – Bob [48:55 mark]
[Bob returns, blog stage right]
As a residential architect, I know how a lot of stuff gets built. I see it almost every day and I know what I am looking at. I know which tools are needed for which jobs, I know the difference between zillions of different screws and nails and when you are supposed to use which type. I am among those people who should be uniquely qualified to strap on a tool belt and get things done. Given that there are a lot of contractors that read these posts, please feel free to chime in with an opinion or advice – it will be warmly received by yours truly.
This is just a partial representation of the tools and equipment that I own … but there are additional items that I need. F0r what’s it’s worth, the items listed below are either a replacement for tools that have since died or have never existed in my arsenal.
Bosch 12v 3/8″ Drill Driver
My last drill/driver came from Sears and it lasted me almost 20-years. I loved it because it showed up to work every time I pulled it out of the case. It was a workhorse for me and as such, it was huge … both in terms of size and weight. Now that I have the chance to get a new one, I am looking to go smaller and lighter.
Graco X5 Airless Paint Sprayer
I don’t think there has been a trip to the big box construction goods store where I haven’t lingered in the paint aisle looking at these airless sprayers. I see them on my job sites all the time and routinely think of all the projects I would attempt if I had something like this at my side. Before, the idea of painting cabinetry seemed preposterous but with an airless sprayer??? I’m in! (I should probably add some collapsable sawhorses to this list …)
Makita 5″ Random Orbit Sander
This is a tool needed to replace the one I’ve had for 20+ years that just doesn’t work the way it should anymore. Do I really need one? Yes … I do really need one.
Architectural offices do a lot more than simply provide a space in which the occupants do their job … they represent the culture of the office and provide a context in which people imagine what they are capable of doing. I have particularly strong feelings about the environment where I work – it’s a space that I look forward to being in, a space that makes me feel comfortable, and most importantly, it’s a space that reflects the culture of the office I am trying to create.
How is your office? Does it do any of those things for you?












