Check out Case Western's stunning new university center [slideshow]
The opening of the new two-story Tinkham Veale University Center, designed by global architecture and design firm Perkins+Will, brings together the two historic campuses of Cleveland’s Case Western Reserve University in a sustainably-designed university center.
The 89,000 sf building combines public spaces, quiet study areas, student organization offices, and a variety of spaces for community functions—all to foster greater interaction and collaboration among students, faculty, staff and community.
With its sloping grass-covered green roof, the two-story building is at the intersection of the two historic original Western Reserve University and Case Institute of Technology campuses, and includes a pass-through walkway that extends through the building connecting the campuses.
The Perkins+Will project team, led by its Chicago and Atlanta offices, designed a center with defined social/cultural, meeting/event, and food/beverage areas with intersecting, public spaces to encourage socializing, collaborating, studying and relaxing.
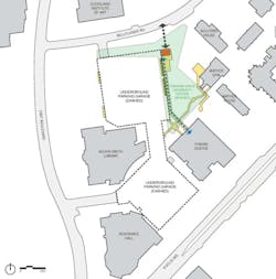
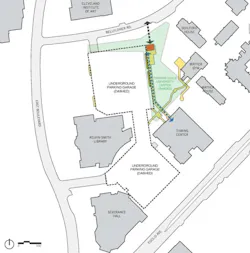
The campus is within Cleveland’s University Circle district, which includes various cultural institutions such as the Cleveland Museum of Art and Severance Hall, home of the Cleveland Orchestra. The siting of the building imposed a variety of constraints, required particular design sensitivities, and sparked a number of innovations. It is next to an underground parking garage, which would not support the weight of a large building. The space also is surrounded by four other campus buildings, the Arts Courtyard, a playing field and a public street.
The shape of the building addresses these constraints by stretching horizontally in three directions. The center frames Freiberger Field, a popular student gathering place, which sits atop the parking garage, and provides greater definition to two other outdoor spaces, the Arts Courtyard and the Mather Courtyard.
“We turned a challenging space into an asset,” said Ralph Johnson, Perkins+Will Global Design Director and Design Principal on the project. “We celebrated and defined these open spaces."
The university was also keenly interested in a building featuring openness, transparency and interactivity. A key decision to create greater interaction led to placing an outdoor walkway that connected the North Campus and the Case Quad into the new center.
"The building brings together various areas of the campus into a central social space for students," added Johnson. "The design respects the context and the constraints of the site it is on and, with the pass-through walkway, provides a major circulation path that energizes the interior of the building."
"In fact," said Stephen Campbell, the university’s Vice President for Campus Planning and Facilities Management, "we sought input from students in the planning and design. We expect them to make the center their own."
The building, open 24 hours a day, seven days a week, is designed to provide for informal and formal gatherings for undergraduates, graduates, faculty, staff, and the community. It is unlike any building that currently exists on campus.
"We were able to create a highly transparent building with public and private spaces that promote interaction among students, faculty and staff throughout their daily campus experience," said Mark Jolicoeur, Perkins+Will Managing Principal on the center.
Another key design feature to the center is a two-story, west-facing double-glass wall that required an innovative engineering system to address solar heat-gain generated by late afternoon sunlight. To reduce energy use and better control the interior environment, the team used fans that pull air to cool the space between the glass walls at high temperatures, while rooftop sensors trigger roller shades to be lowered when the sun is creating glare in the Commons.
During cold winter months, the glass walls allow warmer air to build up. With the glass wall situated above a section of the parking garage containing an air shaft, the design team also had to calculate how to maintain proper air circulation into, and out of, the garage.
The new center is a model of environmental stewardship through its design, construction, and operation. The building is designed to meet or exceed LEED Silver standards.
Perkins+Will brought an interdisciplinary approach to the project, involving Architecture, Interiors, Branded Environments, and Higher Education expertise.
Perkins+Will is a leading designer of higher education buildings, and expects to complete eight student center projects in 2014.
"Case Western Reserve is probably the most progressive expression of the modern student center," said B. Jeffrey Stebar, Planning Principal and a national expert on designing campus centers. "More and more student learning will take place in environments like this center—spaces where students and faculty and the campus community can meet and explore outside traditional and formal learning spaces."
Local architecture support in Cleveland was provided by CBLH Design. Renderings courtesy of Perkins+Will, Case Western Reserve University.
Level 1 plan







